曲轴磨床头架结构的维修改造
2016-11-07滨州海得曲轴有限责任公司(256606) 李海国
摘 要:曲轴磨削时表面经常产生振纹,在维修中,通过排除砂轮不平衡、电机振动、砂轮架主轴组件不平衡等因素的影响后,效果并不十分明显。后来经过分析将MQ8260曲轴磨床头架刚性传动改造为柔性传动,解决了磨削振纹问题。
关键词:曲轴磨床,振纹,头架,刚性传动,柔性传动
我公司目前常规产品主要使用MQ8260曲轴磨床精磨曲轴主轴颈和连杆颈,在生产实践中我们发现:曲轴经磨削后表面经常产生一些间距相等的振纹(有的资料称之为直波纹或棱子),在维修中,通过排除砂轮不平衡、电机振动、砂轮架主轴组件不平衡等因素的影响后,效果并不十分明显。后来通过对头架结构的合理性进行了分析并改造,找出了问题的所在。
1 头架存在的问题
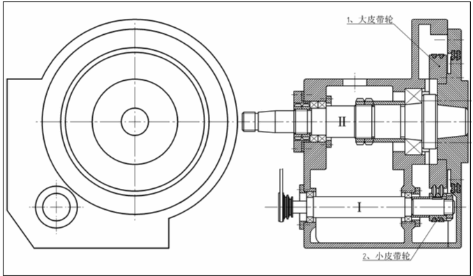
图1所示的是MQ8260曲轴磨床头架结构简图。其传动路线是:由电机(图中未画出)经皮带传动至Ⅰ轴,然后经齿轮传动(齿轮1、2)至Ⅱ轴(头架主轴),由主轴带动曲轴作旋转运动进行磨削。笔者经分析认为:主轴的旋转运动是由齿轮传动带动的,齿轮传动属刚性传动,在工作过程中易引起周期性振动和噪声,并且齿轮经长时间运转后,轮齿会磨损而出现过大间隙,这时传动就不连续,振动就会加大。另外,在机床其它零部件有振动时,头架的周期振动就会加大,很容易就产生间距相等的振纹缺陷。

图1 改造前曲轴磨床头架结构简图
2 解决存在的问题
既然问题出在齿轮的刚性传动上,我们试着把它改为皮带柔性传动(或者改为同步带传动),通过试验,问题迎刃而解。改进后的头架结构如图2所示,将大小两齿轮改为大小两皮带轮,其结构尺寸与齿轮基本相同,这样有利于装配,改造成本也较低。为调整皮带的松紧程度,可在两皮带轮之间加一涨紧轮来实现(图中未画出)。

图2 改造后曲轴磨床头架结构简图
3 结语
经改进后达到了预期的目的,头架运行平稳,曲轴磨削振纹缺陷也很少产生。即使生产过程中再出现振纹缺陷,通过排除其它因素就能解决。我们已对数台设备进行了这样的改进,使用已达三年之久,至今运行良好,据了解,目前类似设备的传动多数改为柔性传动,而且以同步带传动居多。
